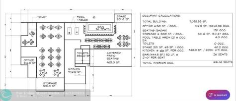
Property Details
Basic Information
- Property Type: Commercial/Industrial
- Fort Lauderdale: F10498839
- Acreage: 1.13
- Virtual Tour: Virtual Tour
Building
- Year Built: 1974
Finance
- Taxes: $8,402
Location
- Building Number: 2405
- Street: Us Highway 441
- Town: Okeechobee
- County: Okeechobee County
- State: FL
- Zip: 34974
